- 0  - 0  - 0  - 0  - 0  - 0  - 0  - 0  - 0  - 0  - 0
  • 6243
  • Оферта №
  • Къща
  • Тип имот
  • 4
  • Спални
  • 3
  • Бани
  • 249

Адрес

  • Град Пловдив
  • Квартал Беломорски
  • Държава България

Детайли

Профилът е обновен февруари 5, 2026 в 9:34 pm
  • Оферта №: 6243
  • Цена: €350,000
  • Квадратура: 249 m²
  • Спални: 4
  • Стаи: 5
  • Бани: 3
  • Тип имот: Къща
  • Вид оферта: Продава

Лихвен калкулатор

Месечно
  • Първоначално плащане
  • Сума на заема
  • Месечна ипотечна вноска
%
%

Описание

оферта 6243
Представяме ви възможността да станете собственик на модерна и просторна къща, разположена в тихия и зелен квартал Беломорски, Пловдив. Този прекрасен дом е идеален за семейства, които търсят спокойствие и комфорт. Главният етаж разполага с широко отворено пространство, което включва всекидневна зона, свързана с трапезария и кухня. Благодарение на големите прозорци, природната светлина изобилства, придавайки уют и стил на вашия нов дом. 
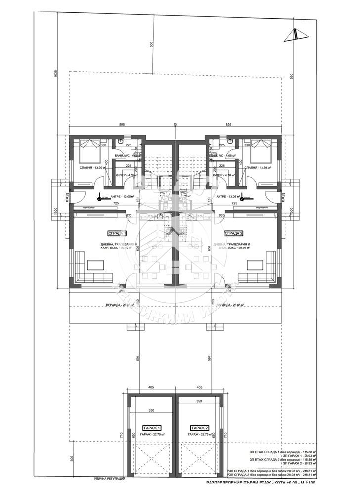
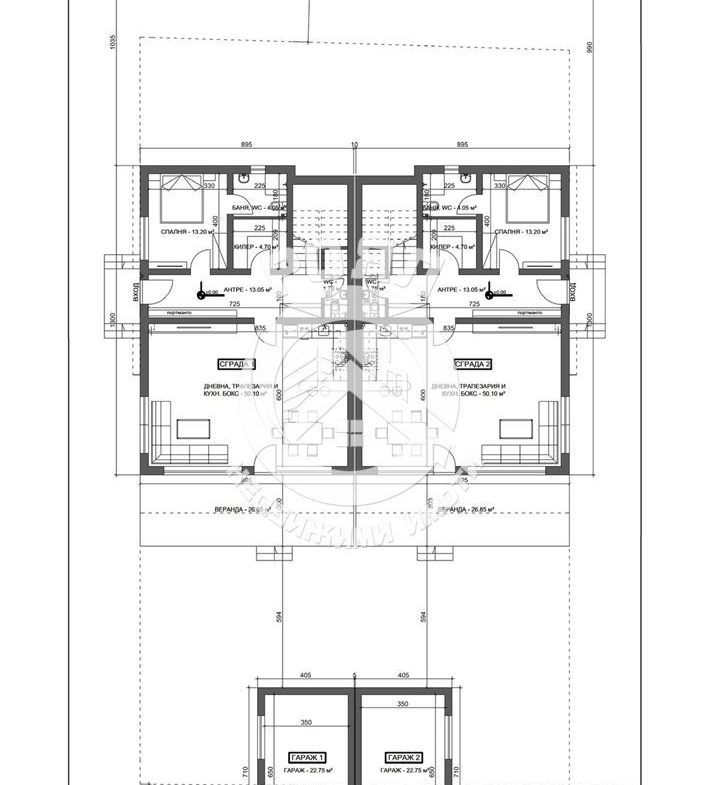
Имотът е пред акт 14 и има следното радпределение:
*1 етаж: ЗП – 115.88 кв.м.
дневна/трапезария/кухн.бокс
антре
спалня с прилежаща баня с тоалетна
килер
тоалетна
веранда
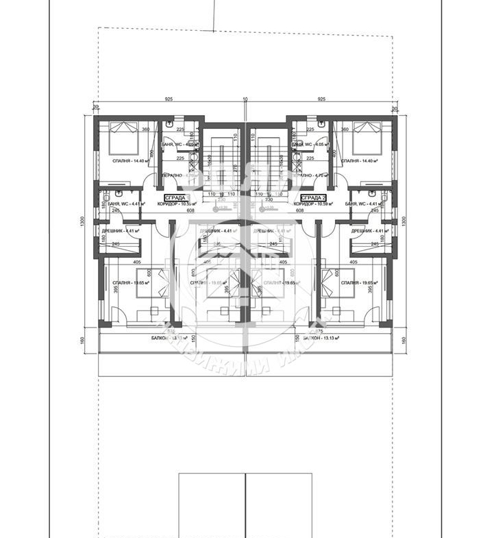
*2 етаж: ЗП – 132.93 кв.м.
3 спални, като двете са със дрешник и общ балкон
-баня с тоалетна
перално/ баня с тоалетна
коридор
Общо РЗП 248.81 кв.м., гараж – 28.93 кв.м. и двор – 200 кв.м.

Подобни имоти

Сравняване на списъци

Сравни
Ерсин Рустем
  • Ерсин Рустем