Роял имоти продава двустаен апартамент, кв.Тракия, Пловдив

  • €89,260
Пловдив, Тракия
  • 6693
  • Оферта №
  • 2-стаен
  • Тип имот
  • 1
  • Спалня
  • 1
  • Баня
  • 74
Продава
Роял имоти продава двустаен апартамент, кв.Тракия, Пловдив
Пловдив, Тракия
  • €89,260

Адрес

  • Град Пловдив
  • Квартал Тракия
  • Държава България

Детайли

Профилът е обновен февруари 5, 2026 в 10:03 pm
  • Оферта №: 6693
  • Цена: €89,260
  • Квадратура: 74 m²
  • Спалня: 1
  • Стаи: 2
  • Баня: 1
  • Година на строеж: 2025
  • Тип имот: 2-стаен
  • Вид оферта: Продава

Лихвен калкулатор

Месечно
  • Първоначално плащане
  • Сума на заема
  • Месечна ипотечна вноска
%
%

Описание

Оферта 6693 !!!!!!БЕЗ Комисионна от Купувача!!!!!!!

Роял имоти предлага за продажба просторен 2-стаен апартамент в гр. Пловдив, р-н Тракия, разположен в нова жилищна сграда ,която ще бъде завършена в края на 2025 г. с луксозно изпълнени общи части и асансьор. Инвеститорът е с доказана репутация, с много завършени обекти зад гърба си.
Паркирането е обезпечено на 100% чрез надземни и подземни паркоместа – удобство и сигурност за всеки дом.
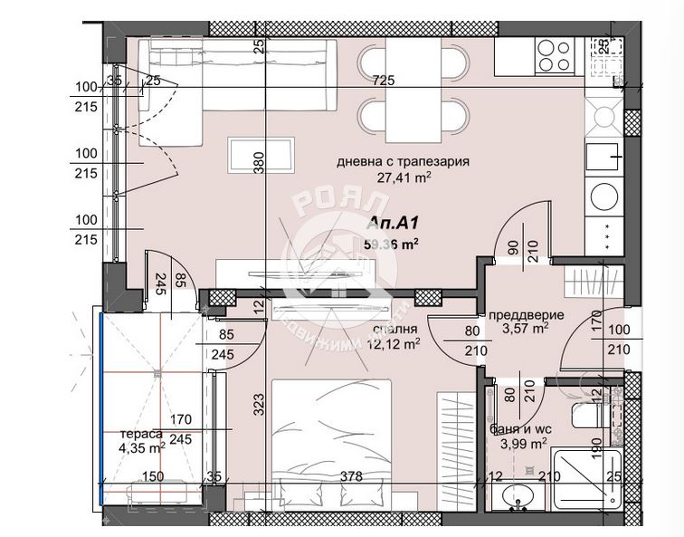
Имотът е с функционално разпределение: входно антре, просторна дневна с обособена кухненска част, спалня и уютен балкон за ежедневен комфорт – имот подходящ както за лично ползване, така и за инвестиция.
Основни параметри:
– Локация: Пловдив, ж.к. Тракия
– Тип: 2-стаен апартамент
– Обща площ: 74.00 кв.м
– Брой стаи: 2
– Брой спални: 1
– Брой балкони: 1
– Брой бани: 1
– Брой тоалетни: 1
– Асансьор: Да
– Сграда: луксозни общи части, технически паспорт
– Паркиране: осигурено на 100% с налични надземни и подземни паркоместа
За квартала:
– Тракия е с развита инфраструктура, търговски обекти, зелени площи и удобен градски транспорт
– Бърз достъп до ключови булеварди, в близост има училища и детски градини и на пешеходно разтояние от центъра на града.

Сравняване на списъци

Сравни
Дида Хаджийска
  • Дида Хаджийска