Роял имоти продава многостаен апартаментв гр. Стамболийски

  • €121,484
Топ Оферта Продава
Пловдив, област, гр.Стамболийски
 - 0  - 0
  • 5795
  • Оферта №
  • 4-стаен
  • Тип имот
  • 3
  • Спални
  • 1
  • Баня
  • 110
Топ Оферта Продава
Роял имоти продава многостаен апартаментв гр. Стамболийски
Пловдив, област, гр.Стамболийски
  • €121,484

Адрес

  • Град Пловдив, област
  • Квартал гр.Стамболийски
  • Държава България

Детайли

Профилът е обновен септември 23, 2025 в 5:15 pm
  • Оферта №: 5795
  • Цена: €121,484
  • Квадратура: 110 m²
  • Спални: 3
  • Стаи: 4
  • Баня: 1
  • Тип имот: 4-стаен
  • Вид оферта: Продава

Екстри

Лихвен калкулатор

Месечно
  • Първоначално плащане
  • Сума на заема
  • Месечна ипотечна вноска
%
%

Описание

оферта 5795
Роял имоти продава изключителен 4-стаен апартамент в сърцето гр. Стамболийски.
Прекрасна възможност за закупуване на просторен и удобен дом. Този прекрасен 4-стаен апартамент е идеален за семейства, които търсят комфорт и спокойствие. Ситуиран в тих и спокоен район, имотът ви предлага изключително удобен начин на живот.
Основни характеристики:
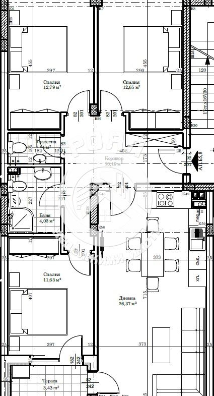
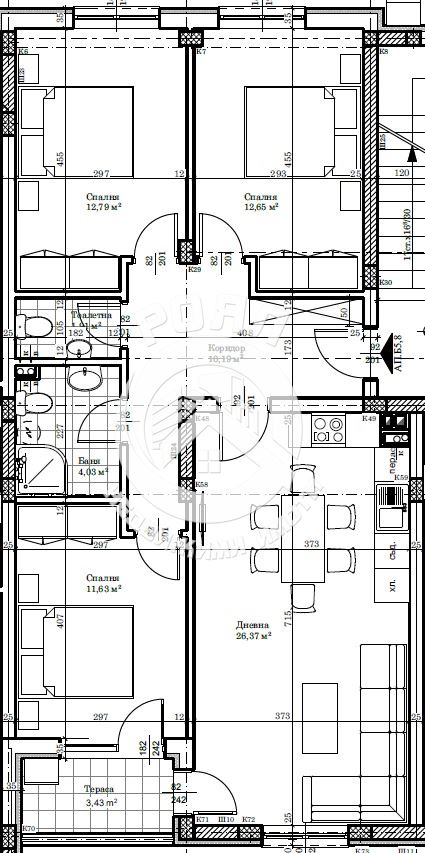
– Обща площ: 110.44 кв.м
– Брой стаи: 4
– Брой спални: 3
– Брой бани: 1
– Брой тоалетни:2
– Асансьор:Да
Детайли за апартамента:
– Просторна дневна зона, идеална за семейни събирания и забавления.
– Три уютни спални, които ще осигурят комфорт и уединение за всеки член на семейството.
– Една баня и две тоалетни, осигуряващи удобство и функционалност.
– Модерен асансьор, даващ лесен достъп до апартамента, идеален за по-възрастни членове на семейството или превоз на тежки покупки.
За квартала:
Град Стамболийски предлага прекрасна комбинация от зелени пространства и удобства. Отлична транспортна връзка с централната част на Пловдив, което прави ежедневните пътувания бързи и лесни. В близост до магазина за хранителни стоки, училища и места за забавление, този район предлага всичко необходимо за комфортен живот.

Подобни имоти

Сравняване на списъци

Сравни
Маргарита Вълева
  • Маргарита Вълева